好色直播下载,好色先生污污版,好色先生TV成人,好色先生TV下载安卓

    好色直播下载工业好色先生污污版厂家专业生产工业好色先生污污版,家用好色先生污污版,商用好色先生污污版等产品,欢迎来电咨询定制。 公司简介 | 研发团队 | 网站地图 | xml地图
    好色直播下载-精芯除湿·致净生活环境温度湿度系统化好色先生TV成人供应商
    全国咨询热线:133-6050-3273
    您的位置:好色先生TV下载安卓 > 公司动态 > 调温型好色先生污污版组成及作用

    调温型好色先生污污版组成及作用

    作者:CEO 时间:2022-12-18

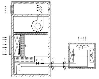
    信息摘要:调温型好色先生污污版适合高温环境中使用,在一些温度变化比较大,温度比较高的场合下,使用调温型好色先生污污版的话,对于降低环境内温度和湿度会有比较显著和良好的效果,给好色直播下载的生产和工作带来的极大的方便。调温型好色先生污污版的湿装置由除湿蛋和承座组

    调温型好色先生污污版组成及作用

    调温型好色先生污污版组成及作用

      调温型好色先生污污版适合高温环境中使用,在一些温度变化比较大,温度比较高的场合下,使用调温型除湿机的话,对于降低环境内温度和湿度会有比较显著和良好的效果,给好色直播下载的生产和工作带来的极大的方便。

      调温型好色先生污污版的湿装置由除湿蛋和承座组成。

      6f363e6132.jpg

      所谓除湿蛋,就是一种多孔的,透气较好的的陶瓷外壳,除湿蛋的里面是一个容器,里面有吸收空气水汽的物质,本体底面设一穿孔,用一塞套封闭,该外壳外面得局部涂设湿度感应材料,以显示除湿蛋的吸湿状况;该承座为托持除湿蛋的座体,其中承座得为夹状结构,由左右夹板组成,两夹板形成的夹口作为除湿蛋的承窝,夹板上得设有透视窗,透视窗内设有湿度成应材,以显示除湿蛋的吸湿状况。

      调温型好色先生污污版与一般型好色先生污污版相比,在制冷系统中,增设了一个水冷冷凝器(水冷式)或一个室外风冷冷凝器(分体风冷式),再热器面积可减小。这里面有两种做法,一种是将再热器置于水冷或风冷冷凝器前面,与后者串联布置,并分多路控制,以此调节对冷却除湿后空气的加热量,从而达到控制出风温度的目的。另外,水冷式设比例式三通水量调节阀,调节冷却水量,风冷式设冷凝风量控制,从而使冷凝器带走多余的热量。

      另一种做法是将再热器置于水冷或风冷冷凝器后面,也是串联布置,只通过水冷式的水量调节阀调节冷却水量或风冷式的冷凝风量控制,来调节冷凝器带走的热量,从而到达调节出风温度的目的。

    声明:本站部分内容和图片来源于互联网,经本站整理和编辑,版权归原作者所有,本站转载出于传递更多信息、交流和学习之目的,不做商用不拥有所有权,不承担相关法律责任。若有来源标注存在错误或侵犯到您的权益,烦请告知网站管理员,将于第一时间整改处理。管理员邮箱:y569#qq.com(#改@)
    在线客服
    联系方式

    热线电话

    133-6050-3273

    上班时间

    周一到周六

    公司电话

    133-6050-3273

    二维码
    线
    网站地图